Exclusive listing - Neuilly-Perronet - 2 or 3-bed apartment - High-end building - Close to shops and transport services
Pago en criptomoneda disponible. Para saber más
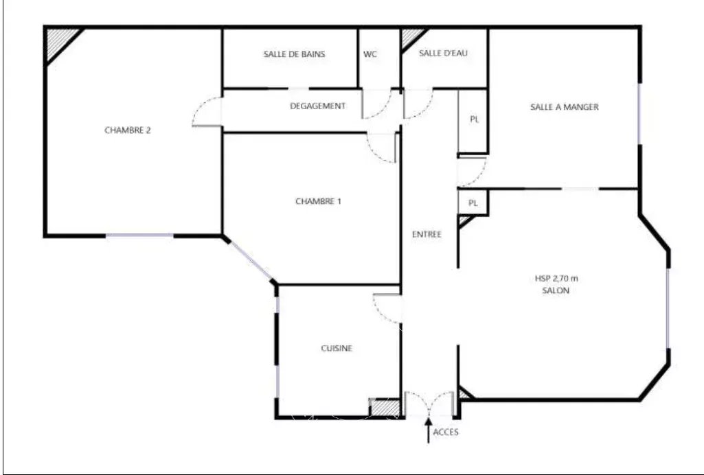
Honorarios : 4.00% TTC *This 94m² (1,012 sq ft) apartment complete with period features is situated on the third floor of a stunning dressed stone building with a lift, on a quiet street in the "Village Chézy-Perronet?, close to the shops. Comprising an entrance hall, a double-sized west-facing living room, a fully fitted and equipped separate kitchen, two bedrooms (option to fit out a third bedroom), a bathroom, a shower room, a separate toilet, and plenty of storage space. Cellar also included with the sale. Sought-after area - Quiet surroundings - Bright and sunny - Generous proportions - Smooth and modular layout (2 or 3 bedrooms - separate or open kitchen) - Good general condition - Double glazing - Lycée Pasteur school sector - Close to shops. Property subject to shared ownership status €1,144,230.77 Agency fees not included - Agency fees: 4% incl. tax Fees payable by the buyer - Number of lots in the building: 28 - Average amount of the share of charges €3,804/year - Estimated amount of annual energy costs for standard use based on 2021, 2022 and 2023 energy costs: €1,550 ~ €2,160 - Information on the risks to which this property is exposed is available on www.georisques.gouv.fr - Soumia Inane - Sales agent - EI - RSAC 438332231 1,144,230.77 € Agency fees not included - Agency commission: 4%VAT included Agency fees payable by buyer - Nombre de lots dans la copropriété: 28 - Montant moyen de la quote-part de charges courantes 3,804 €/yearly - Montant estimé des dépenses annuelles d'énergie pour un usage standard, établi à partir des prix de l'énergie de l'année 2021, 2022, 2023 : 1550€ ~ 2160€ - Les informations sur les risques auxquels ce bien est exposé sont disponibles sur le site Géorisques : www.georisques.gouv.fr - Soumia INANE - Agent commercial - EI - RSAC 438332231
La información sobre los riesgos a los que está expuesta esta propiedad está disponible en el sitio web de GeoHazards: www.georisques.gouv.fr
Gasto energético mínimo anual estimado para un uso estándar: 1550 €/año (año de referencia 2021)
Gasto energético máximo anual estimado para un uso estándar: 2160 €/año (año de referencia 2021)
Esta propiedad se presenta a través de:

Soumia INANE
Agente comercial E.I.
ContactoBARNES Pied-à-Terre Neuilly
22 rue de l'Hôtel de Ville
92200 NEUILLY-SUR-SEINE
¡El boletín de BARNES!
Noticias en bienes raíces de lujo y las mejores ventas de bienes raíces
¿Le interesa?